Knox Pediatric Dental
Designing dental spaces that merge aesthetic appeal with practical functionality is key to enhancing both patient and staff experiences
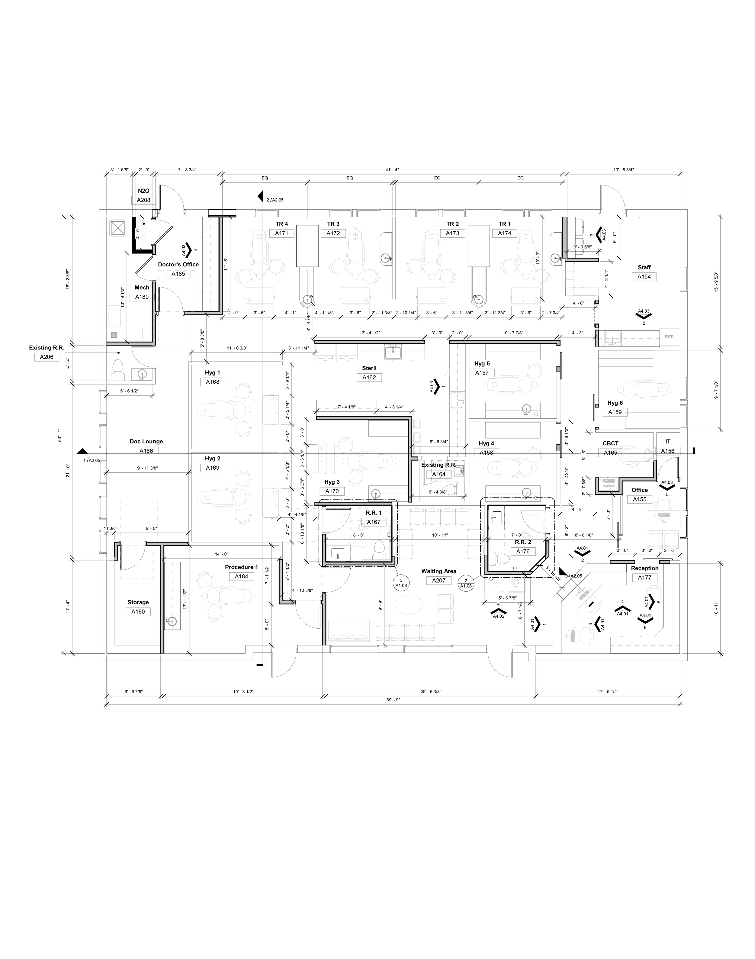
Location: 13080 Veterans Memorial Dr. Suite # Houston, TX 77014
Size: 3,485 SF
Location: 13080 Veterans Memorial Dr. Suite # Houston, TX 77014
Size: 3,485 SF